2022-03-13 沈阳消防公司
一、消防水灭火系统
嵌入式消火栓箱安装施工技术
1消火栓立管和消火栓位置优化
将安装施工图与建筑图重叠,优化消火栓管道和箱盒的位置;安装专业将优化的消防栓箱位置及预留洞的标高和尺寸向土建专业进行交底。
2消火栓箱预留孔和立管预留孔
土建按交底要求预留洞口,消火栓箱洞口上方设置预制钢筋混凝土过梁。
3消火栓主管安装
安装立管支架吊线;修整倾斜的隔水管孔;安装消火栓的立管和套管(消火栓管道应采用热镀锌钢管)。
4.消火栓箱和消火栓支管的定位和安装
结合装饰面层的具体情况,确定消火栓箱的墙面尺寸;挂线安装时,要保证墙体部分顺直,无尺寸。
5水压试验
水压试验必须符合设计要求。当设计无规定时,管道系统的试验压力为工作压力的1.5倍,但不小于0.6MPa
6箱内孔的密封和水枪软管的配置
系统试压完成后,将消防栓箱上的孔洞堵上,并按要求配置水枪的水带。
质量控制要点
1.消火栓箱的安装高度应保证灭火栓安装完成后,栓口中心距建筑物完成面1.1m
2.插头插座的出线方向应朝下或与设置灭火插头的墙面成90度角(薄壁盒内应设置可旋转的插头头);
3.消火栓箱墙面尺寸统一,箱体安装平直;
4.箱体上的孔洞封口整齐美观。
消防环网安装施工技术
1管网的绘制、重叠绘制和深化
将水、电、风的建筑、装修、安装施工图进行合并、重叠,深化管网图,充分避免消防管道与桥架、风管的打架以及与建筑构件、装修造型的冲突。
2放线及支撑(扶壁)安装
根据深化定位图现场放线,按要求安装支架和支墩(DN100管道支架与支墩距离≯4.5m,DN125管道支架与支墩距离≯6m,DN150管道支架与支墩距离≯7m)。
3管道和阀门安装
消防管道和阀门应根据支架的定位位置进行安装(阀门的安装位置应通过支架进行加固)。
4系统水压试验
对管网进行水压试验(水压试验必须满足设计要求,当设计无规定时,管道系统的试验压力为工作压力的1.5倍,但不小于0.6MPa)。
5.管道面漆、标记喷涂
用面漆和面漆喷涂管道和支架(注意与施工、装饰腻子、涂料等工序相互穿插,避免交叉污染)。
质量控制要点
1.深化管网一定要充分考虑建筑净高的要求,特别要注意风管、桥架、防火幕的位置(车库要求:车位>2m,车道>2.2m);
2.水压试验必须严格按照设计和规范要求进行,并采取安全措施;
3.橡胶软接头(波纹补偿器)在伸缩缝位置的安装方法一定要正确,保证膨胀变形只在橡胶软接头位置。
消防泵及辅助管道安装施工技术
1泵房的综合布置
消防泵房施工前,应根据设计图纸和水泵型号对泵房进行综合布置,合理进行水电分区,确定水泵和报警阀的位置,优化泵房的水电管线。
2消防水池浇筑
准确预留与消防水池相关的孔洞(水泵入口、水池入口、回水、放空、溢流、旁通、液位计、人孔等。)和检修梯子按详图的位置。
3泵基础铸件
泵房底板施工前,应根据综合布置图浇筑泵基础,并根据泵的型号预留地脚螺栓或地脚螺栓孔。
4水泵安装和管道安装
水泵的找正、找平、定位及安装,水泵进出水管及相关阀门的安装(阀组支架及支撑必须固定牢固)。
5管网压力试验和水泵调试
系统安装好后,先关闭水泵出口的阀门,测试管网压力;试压合格后,进行管网冲洗,水泵单机试压。
质量控制要点
1.基础高度的确定,必须保证泵入口阀组的安装空间;
2.偏心头和进水口小头的安装必须平整,避免水泵气蚀损坏;
3.泵垫安装有效(确保垫外露);
4.橡胶软接头的安装保证了水泵的振动能被有效吸收,防止传递到泵后的管网。
二、烟气控制系统
建筑风道(烟道)安装施工技术
1质量交底和模型制定
对施工队伍进行现场交底,制定样板,明确竖井砌筑和竖井抹灰的质量要求。
2竖井砌筑和抹灰
根据样板要求,竖井砌体应同时抹灰,抹灰质量应满足室内抹灰平整度的要求。
3孔修理和空气阀孔的关闭
修补风井孔,关闭风阀和百叶窗预留孔周围的孔。
质量控制要点
1、抹灰平整度按室内标准要求(保证楼梯间与走道压差40~ 50 Pa,前室与走道压差25~ 30pa);
2.风阀、百叶预留孔关闭,满足风阀、百叶可直接安装的条件,不需要进一步关闭。
屋顶消防风机安装施工技术
1基础尺寸和位置的确定
合风机规格、风井位置、屋顶建筑结构的具体位置来布置风机基础位置。
2防雷接地端子预留及基础浇筑
在屋顶浇筑混凝土时,将防雷接地端子预留到风机基础位置。浇筑顶板结构面后,准确定位风机基础位置,浇筑风机基础。
3建筑屋面和基础面施工
屋面防水、保温层、找平层、刚性层施工时,注意防水必须翻至风机基础边缘,以保证防水系统的严密性;抹灰或铺设风机的基础表面。
4风扇和附件的安装
根据风井位置,校正风机位置,准确定位风机;安装减震垫,固定风扇;安装防鼠网,安装连接风道,对风机金属外壳做防雷接地处理。
5风机雨篷及防护措施安装
安装风机遮阳篷和防护措施,完善可靠的防雷和接地措施。
质量控制要点
1.风机的基础必须从结构面预留(并配合预留防雷接地端子);
2.风机阻尼垫不得被基础表层覆盖,以保证有效的阻尼措施;
3.风机、雨篷及金属部分的保护措施必须可靠防雷接地。

三、火灾自动报警设备的安装施工技术
1点综合布置
根据系统功能,优化报警控制器、火灾探测器、手动报警器、声光报警器、各种模块等设备的位置,确定布线路线和布线方式。
2.预留预埋保护管和线槽安装
根据优化后的设备定位位置,敷设线管、预留线盒、穿线管(明管弯曲半径≥6D,暗配管弯曲半径≥10d);金属线槽安装支架间距≤1.5m,必须使用专用开孔器开安装孔,不得使用电气焊开孔;保护管和金属槽的跨接线的截面积不小于4mm2。
3.放线和设备安装
根据保护管和线槽确定的路线进行放线。放线时应考虑不同系统、不同电压、不同电流类别的线路,不得穿在同一管内或同槽线槽内;设备安装应严格按照优化后的定位图进行(设备在装修区域的定位应与装修要求共同确定)。
4.系统调试和验收
火灾自动报警系统的调试应在建筑物内部装修和系统施工后进行;首先,消防设备应进行单机调试。单机调试合格后,按照建筑工程消防设施验收的具体要求进行联动调试,逐项检查设备功能。自检合格后,按要求提交检测单位检测验收。
质量控制要点
1.配管前,根据设备型号,选择与设备相匹配的箱体;
2.装修施工前,消防单位应当配合装修单位制定装修区域的施工模型,准确界定设备点的位置;
3.设备定位必须与装修沟通确定,人工报告、插孔电话、消防电话电话为1.3~ 1.5m;声光报警:离地1.8m
4.设备安装必须在装饰腻子和装饰面漆完成后进行,避免二次污染。
四、疏散指示、安全出口的安装和施工技术
1.检查疏散路线和设备定位。
根据建筑的功能要求检查疏散路线(确定不同方向的设备数量),优化疏散指示和出口位置,并指定安装方式(明装或暗装,墙装或地装或吊装)。
2.线管预埋及安装位置预留
根据优化图的定位位置,准确预留接线盒位置并预埋保护管(隐蔽疏散指示和安全出口处预留安装底盒),预埋后及时疏通管道并穿引丝。
3.放线和设备安装
安装完装饰吊顶龙骨后,及时放线。放线时,接线盒或底盒处必须留有适当余量,并保证良好的绝缘保护。建筑、装修腻子、涂料施工完毕后,应及时进行疏散指示和安全出口安装(疏散指示标志走道墙安装距离不宜大于20m)。
4.系统调试
消防系统安装完成后,应对疏散指示和安全出口进行调试(正常交流电源切断后,疏散指示和安全出口应平稳切换至应急工作状态,切换时间不超过5s)。
质量控制要点
1.原则上要求疏散指示隐蔽。有什么困难,就要走出表面背后的那条线。
2.疏散指示墙底边距地面400~ 500cm;
3.安全出口吊装应保证底边距地面的距离为2.2~2.5m,吊装应保证铺设路线横平竖直、美观;
4.设备安装完成后,必须对成本产品进行保护,以免损坏。
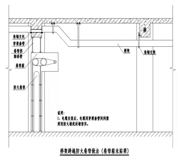
5.防火卷帘部位水电管道安装施工技术
1绘图和优化
在涉及部分的结构施工前,做好该部分的安装图和建筑、结构图的联绘图,优化该部分的水电管线,或移位或作为梁上的管线处理,避免水电管线穿越防火卷帘。
2保留和嵌入
结构施工时,根据图纸位置准确预留管套和电线电缆保护管。
3管道安装
严格按照优化后的施工图安装水电管线,并注意预留防火卷帘盒的安装空间。
4孔堵塞
水管与套管之间按要求用石棉绳和石棉水泥密封,电缆电线与保护管之间用防火泥密封。
质量控制要点
1.结构施工前,要结合构图进行水电图的组合和优化;
2.防火卷帘盒的安装空间必须充分预留。百叶箱的安装间距应根据防火卷帘的高度确定,水平方向不应小于1m;
3.套管和保护管必须可靠封堵,以满足防火性能要求。

六、防火门安装施工工艺
1专业间叠图
将建筑和安装图纸进行叠加,特别要检查消火栓竖管和消火栓箱是否与防火门发生战斗,根据战斗情况提前优化消火栓位置或防火门开启位置。
2门洞预留
根据优化后的开启位置预留防火门开口。
3防火门安装
防火门安装必须放线(标高线和垂直线)。首先要将门框找正严格做到横平竖直,然后安装门扇和五金件。
4闭门器,顺序器安装
门扇五金件安装完成后,安装常闭式防火门关闭器和顺序器,安装常开式防火门释放器和顺序器。
5标志张贴
张贴消防产品标识信息标志、铭牌和证书。
质量控制要点
1.注意甲、乙、丙类防火门的使用位置;
2.确保防火门门扇与地板之间有5mm左右的间隙;
3.常开防火门应在火灾报警并反馈信号后自动关闭;
4.防火门标志“三证齐全”。
陈经理:18640181195
